LG細粉螺旋給料機
概述
LG型細粉螺旋給料機在細粉料、超細粉料生產流程中,把細粉、超細粉料從貯料倉或漏斗中定量、連續地給到受料裝置中去。螺旋給料機給料連續、均勻、準確,停車時,物料即停止卸出,不必再安裝料也閘門;填補了振動給料機不能用于細粉料、超細粉料的給料的空缺;密封性好,實現全密封給料,無需局部除塵防毒。
特點
LG細粉螺旋給料機特點:
1、重力稱重與螺旋輸送方式結合,實現動態連續計量;
2、結構緊湊,運行穩定可靠;
3、自動計量標定系數,自動測量系統零點;
4、手動置入各種參數,運行操作可手動/自動切換;
5、具有儀表自診斷和計算機聯網功能。
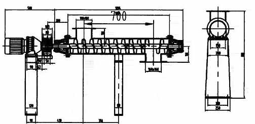
LG細粉螺旋給料機尺寸圖:
參數
1 產量2—8立方米/時
2. 電機功率 0.75千瓦
3. 減速機型號 BWl2
4. 主鈾轉速 20—150轉/分
5. 設備重量 320千克
用途
LG型細粉螺旋給料機適用于易流動,無粘結性或粘結性小,無磨琢性或磨琢性較微,不怕破碎又要要求密封的環境。

相關產品
動態
-
21
2012-05
振動篩之氣流篩使用注意事項
一、維護與保養 操作人員要嚴格按照氣流篩產品使用說明書的要求,正確使用設備,做好設備的清潔、潤滑、緊固和防蝕等日常維護工作,使設備經常保持內外清潔、性能良好、安全可靠的狀.. 電磁振動給料機 一、維護與振動式給煤機保養細粉螺旋給料機清潔、潤滑、緊固和防..
-
19
2012-05
振動篩篩網破損過快的原因及相應的解決方法
振動篩篩網過快破損原因: 振動篩網過快破損的主要原因有:篩網質量不合格、篩網的張緊力度、振動電機轉向錯誤、粘土堆積等。 解決方法是: 1、篩網張緊力度不夠,以致.. 高效直線振動篩 振細粉螺旋給料機動篩篩網過快破損原因:刮板給煤機錯誤、粘土堆積等..
-
18
2012-04
常用磨粉機、粉磨設備的分類及用途
磨礦機一般處理的物料粒度較小,產品可達0.074mm或更細,它是靠夾在介質(鋼介質或非金屬介質)之間的礦粒,受到沖香蕉篩擊和磨剝作用而完成粉碎的。按所得產品細度分為粗磨(1-0.3mm)、細磨(0.1-0.07.. 細粉螺旋給料機 磨礦機一般處理的物料粒度較小,產品可達0.074mm..
-
11
2012-04
輸送機輸送帶打滑故障的原因及解決辦法
輸送機輸送帶打滑故障分析: 輸送機輸送帶正常運轉時,帶速不低于輥筒轉速的95%。如果輥筒與輸送機輸送帶的摩擦寬槽型振動給煤機力不夠,輸送帶就容振動給料斗易出現.. &n圓振篩bsp;輸送機輸送帶打滑故障分析:葉輪給料機nbsp; 細粉螺旋給料機輸送機輸送帶正常運轉時,..
-
01
2012-03
斗式提升機的顯著優點
斗式提升機具有輸送量大,提升高度高,運行平穩可靠,壽命長顯著優點,供應螺旋給料機通過振動臺投入料斗后機器自動連續運轉向上運送。
熱銷產品
-
DZSF直線振動篩
DZSF系列直線振動篩是由篩箱、篩框、振動電機、減振系統及座架等組成。直線振動篩是用振動電機作為振動源,固定在篩箱上兩臺相同的振動電機做相反方向自同步旋轉,振動電機所帶的偏心塊在旋轉時各個瞬間位置所產生的離心力之分力沿拋擲方向作往復運動
立即了解?DZSF直線振動篩
-
CZ系列倉壁振動器
-
ZG系列慣性振動器
-
GZ系列電磁振動給料機
GZ系列電磁振動給料機在生產流程中,用于把塊狀、顆粒狀、粉狀物料從貯料倉或漏斗中定量、均勻、連續地給到受料裝置中去。
立即了解?GZ系列電磁振動給料機