電機振動給料機
概述
電機振動給料機是利用特制的振動電機或兩臺電動機帶動激振器驅動給料槽沿傾斜方向作周期直線往復振動來實現的。當給料槽振動的加速度垂直分量大于重力加速度時,槽中的料被拋起,并按照拋物線的軌跡向前跳躍運動,拋起和下落在瞬間完成,由于激振源的連續激振,給料槽連續振動,槽中的煤連續向前跳躍,以達到給料的目的。
特點
電機振動給料機可以給用戶提供自動穩幅控制系統,配套微機控制箱可實現智能化給料,穩定性高。
由于電機振動給料機采用近共振原理,故能耗低。物料在槽內呈微拋運動,料槽磨損小。
采用半波整流控制線路,可在額定產量內無級調節給料量,可用于自動控制的生產流程中,實現生產自動化。
結構簡單,重量輕,維修方便,不需要潤滑。
參數
電機振動給料機技術參數:
型號 |
槽體尺寸 寬×長×高(mm) |
給料能力t/h | 電機型號 | 功率(千瓦) | 振動頻率(Hz) | 振幅(雙)(mm) | 重量(公斤) | |
α=0° | α=10° | |||||||
BZG1015 | 1000×1500×200 | 200 | 450 | Y112M-6 | 2×1.5 | 16 | 12 | 998 |
BZG1020 | 1000×2000×200 | 200 | 450 | 2×2.2 | 1053 | |||
BZG1216 | 1200×1600×280 | 200 | 600 | 1050 | ||||
BZG1220 | 1200×2000×280 | 200 | 600 | 1123 | ||||
BZG1525 | 1500×2500×330 | 500 | 1200 | Y132S-6 | 2×3 | 1850 | ||
BZG1530 | 1500×3000×330 | 500 | 1200 | 1992 | ||||
BZG1825 | 1800×2500×330 | 800 | 1500 | Y132M1-6 | 2×4 | 2180 | ||
BZG1830 | 1800×3000×330 | 800 | 1500 | 2327 |
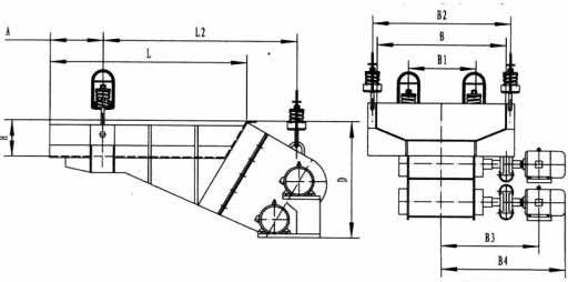
電機振動給料機外形尺寸
型號 | A | H | L | D | B | B3 | B4 | B1 | L2 | B2 |
BZG1015 | 400 | 288 | 1500 | 900 | 1000 | 649 | 949 | 600 | 1550 | 1200 |
BZG1020 | 500 | 288 | 2000 | 900 | 1000 | 649 | 949 | 600 | 1950 | 1200 |
BZG1216 | 400 | 288 | 1600 | 1000 | 1200 | 749 | 949 | 600 | 1650 | 1400 |
BZG1220 | 500 | 288 | 2000 | 1000 | 1200 | 749 | 949 | 600 | 1950 | 1400 |
BZG1525 | 800 | 330 | 2500 | 1170 | 1500 | 900 | 1146 | 907 | 2210 | 1735 |
BZG1530 | 800 | 330 | 3000 | 1170 | 1500 | 900 | 1146 | 907 | 2710 | 1735 |
BZG1825 | 800 | 330 | 2500 | 1170 | 1800 | 1079 | 1336 | 1207 | 2210 | 2035 |
BZG1830 | 800 | 330 | 3000 | 1170 | 1800 | 1079 | 1336 | 1207 | 2710 | 2035 |
電機振動給料機外形尺寸
型號 | A | H | L | D | B | B3 | B4 | B1 | L2 | B2 |
GZKF1015 | 400 | 288 | 1500 | 1000 | 1000 | 649 | 949 | 600 | 1700 | 1200 |
GZKF1020 | 500 | 288 | 2000 | 1000 | 1000 | 649 | 949 | 600 | 2100 | 1200 |
GZKF1216 | 400 | 288 | 1600 | 1100 | 1200 | 749 | 949 | 600 | 1800 | 1400 |
GZKF1220 | 500 | 288 | 2000 | 1100 | 1200 | 749 | 949 | 600 | 2100 | 1400 |
GZKF1525 | 800 | 330 | 2500 | 1290 | 1500 | 900 | 1146 | 907 | 2385 | 1735 |
GZKF1530 | 800 | 330 | 3000 | 1290 | 1500 | 900 | 1146 | 907 | 2885 | 1735 |
GZKF1825 | 800 | 330 | 2500 | 1290 | 1800 | 1079 | 1336 | 1207 | 2385 | 2035 |
GZKF1830 | 800 | 330 | 3000 | 1290 | 1800 | 1079 | 1336 | 1207 | 2885 | 2035 |
用途
電機振動給料機廣泛用于礦山、冶金、煤炭、建材、輕工、化工、電力、糧食等各行各業中,用以把塊狀、顆粒狀及粉狀物料從貯料倉或漏斗中均勻連續或定量地給到受料裝置中去,例如向破碎、選煤、篩分、運輸、包裝機械等給料、配料等。

相關產品
-
BZG普通電機驅動慣性振動給料機
BZG系列普通電機驅動慣性振動給料機吸取了GZG系列、GZY系列振動給料機等機型的優點,采用低頻率大振幅振動,處理量大,是一種理想的高效低噪音給料機。
立即了解?BZG普通電機驅動慣性振動給料機
動態
-
20
2021-10
快看!電機振動給料機的結構優勢及維護要點
電機振動給料機為慣性振動給料的一種,采用振動電機作為激振源帶動料斗工作,具有結構簡單、處理量大、噪音小、能耗低、維修成本低等特點。
-
22
2020-10
了解電機振動給料機的日常維護保養事項
電機振動給料機能夠將塊狀或者顆粒狀的物料從貯料倉或漏斗中均勻連續或定量地給到受料裝置中去。
-
29
2012-08
電磁振動給料機的電氣控制
電磁振動給料機的電氣控制采用半波整流電路,振動給料斗是一種新型的料倉破拱給料裝置,電機振動給料機廣泛用于冶金、煤礦、選礦、建材、化工、磨料等行業的破碎、篩分聯合設備中。
熱銷產品
-
DZSF直線振動篩
DZSF系列直線振動篩是由篩箱、篩框、振動電機、減振系統及座架等組成。直線振動篩是用振動電機作為振動源,固定在篩箱上兩臺相同的振動電機做相反方向自同步旋轉,振動電機所帶的偏心塊在旋轉時各個瞬間位置所產生的離心力之分力沿拋擲方向作往復運動
立即了解?DZSF直線振動篩
-
CZ系列倉壁振動器
-
ZG系列慣性振動器
-
GZ系列電磁振動給料機
GZ系列電磁振動給料機在生產流程中,用于把塊狀、顆粒狀、粉狀物料從貯料倉或漏斗中定量、均勻、連續地給到受料裝置中去。
立即了解?GZ系列電磁振動給料機