電磁給料機
概述
電磁給料機將煤炭或其它散狀物料從料倉或漏斗中均勻連續或定量地給到受料設備中去,如帶式輸送機,斗式提升機,篩分設備,破碎機等。
特點
電磁給料機配備電源控制箱,可以無級調節給料量,配備自動穩幅控制箱,可不受電源電壓的波動,而使機器振幅穩定,噪音降低、壽命延長、可靠性提高,同時還可以與計算機實現聯機,實現自動化智能給料。
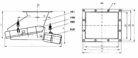
電磁給料機外形尺寸
參數
性 能 | 單 位 | 型 號 | ||||
ZG-20 | ZG-50 | ZG-100 | ZG-200 | ZG-300 | ||
額定給料量 | t/h | 20 | 50 | 100 | 200 | 300 |
入料粒度 | mm | <75 | <100 | <150 | <200 | <300 |
電源電壓 | V | 200 | 380 | |||
電源頻率 | Hz | 50 | ||||
電 液 | A | ≤3.8 | ≤7 | ≤10.6 | ≤13.3 | ≤20 |
控制原理 | 半波整流 | |||||
振動頻率 | min-1 | 3000 | ||||
氣 隙 | mm | 1.8-2 | ||||
最大振幅 | mm | 1.75 | 1.5 | |||
整機重量 | kg | 266 | 497 | 898 | 1750 | 2300 |
代 號 | A×A | B×B | C×C | D1 | D2 | D3 | G | L |
ZG-20 | 480 | 435 | 380 | ф325 | ф385 | ф425 | 800 | 1470 |
ZG-50 | 595 | 540 | 480 | ф426 | ф490 | ф528 | 1100 | 2000 |
ZG-100 | 845 | 800 | 720 | ф630 | ф700 | ф745 | 1250 | 2400 |
代 號 | H | n1-ф1 | n2-ф2 | F1 | F2 | 減振器開檔 | |
前 | 后 | ||||||
ZG-20 | 900 | 12-14 | 12-14 | 535 | 310 | 518 | 518 |
ZG-50 | 1100 | 12-18 | 12-18 | 560 | 538 | 640 | 620 |
ZG-100 | 1415 | 16-18 | 16-18 | 470 | 580 | 930 | 750 |
代 號 | A1 | A2 | A3 | B1 | B2 | B3 | n-ф |
ZG-200 | 1130 | 1032 | 930 | 1180 | 270×4-1080 | 980 | 16-18 |
ZG-300 | 1140 | 1060 | 960 | 1640 | 260×6-1560 | 1460 | 20-18 |
代 號 | H1 | H | L | F1 | F2 | 減振器開檔 | |
前 | 后 | ||||||
ZG-200 | 1050 | 1350 | 2450 | 880 | 510 | 1197 | 720 |
ZG-300 | 1060 | 1490 | 2650 | 850 | 680 | 1677 | 840 |
用途
電磁給料機廣泛用于電力、煤炭、礦山、建材、化工、冶金等各部門中,用以把塊狀、顆粒狀及粉狀物料從貯料倉或漏斗中均勻連續或定量地給到磨煤機、分選機械、包裝機械等受料裝置中。

相關產品
-
ZG系列電磁振動給煤機
ZG系列電磁振動給煤機可以將煤炭或其它散狀物料從料倉或漏斗中均勻連續或定量地給到受料設備中去(如帶式輸送機,斗式提升機,篩分設備,破碎機等)。
立即了解?ZG系列電磁振動給煤機
-
GZxG系列管式電磁振動給料機
GZxG系列管式電磁振動輸送機廣泛應用于冶金、煤炭、化工、建材等行業中,把小塊狀、顆粒狀、粉狀等散體物料連續均勻地輸送到下一設備。
立即了解?GZxG系列管式電磁振動給料機
-
GZ系列電磁振動給料機
GZ系列電磁振動給料機在生產流程中,用于把塊狀、顆粒狀、粉狀物料從貯料倉或漏斗中定量、均勻、連續地給到受料裝置中去。
立即了解?GZ系列電磁振動給料機
-
GZV系列微型振動給料機
GZV系列微型振動給料機與其它形式給料機相比具有體積小、選題輕、結構簡單、耗電省、可無級調節給料量等特點,GZV系列微型電磁振動給料機配套普通控制箱可實現手動無級調節,如配套自動控制箱,可實現手動、自動調節。
立即了解?GZV系列微型振動給料機
-
小型電磁振動給料機
-
微型電磁振動給料機
-
電磁振動給料機
電磁振動給料機噪音降低,壽命延長,可靠性提高,同時還可以與計算機實現聯機,實現自動化智能給料,配備電源控制箱,可以無級調節給料量,配備自動穩幅控制箱,可不受電源電壓的波動,而使機器振幅穩定。
立即了解?電磁振動給料機
動態
-
17
2020-03
管式電磁振動給料機的結構特點講解
管式電磁振動給料機具有結構簡單,安裝方便,不需潤滑,使用壽命長,耗電少等優點。該振動給料機采用可控硅半波整流控制線路,可以無級調節輸送量,實現生產流程的集中控制和自動控制。
-
11
2018-12
電磁振動給料機的維護檢查事項是怎樣的呢
電磁振動給料機是一種新型的給料設備,該設備體積小,重量輕,結構簡單,安裝方便,無轉動部件不需潤滑,維修方便,運行費用低。
-
24
2018-08
新型給料設備---電磁振動給料機的優勢
電磁振動給料機是用于把顆粒狀或粉狀物料從貯倉或漏斗中均勻、連續、定量地給到帶式輸送機、振動篩等設備中,特別適用于自動配料、定量包裝、自動控制等,實現生產流程自動化。
-
07
2018-05
還不了解電磁振動給料機嗎?別錯過了!
電磁振動給料機是用于把顆粒狀或粉狀物料從貯倉或漏斗中均勻、連續、定量地給到帶式輸送機、振動篩等設備中, 特別適用于自動配料、定量包裝、自動控制等,實現生產流程自動化。
-
11
2016-06
電磁振動給料機埃及客戶現場
海安永恒振動機械廠是生產電磁振動給料機,振動給料機,給料機等振動電機和振動機械的廠家之一,具有優質的設計水平,先進的生產工藝,完善的檢測設備,良好的企業信譽。
熱銷產品
-
DZSF直線振動篩
DZSF系列直線振動篩是由篩箱、篩框、振動電機、減振系統及座架等組成。直線振動篩是用振動電機作為振動源,固定在篩箱上兩臺相同的振動電機做相反方向自同步旋轉,振動電機所帶的偏心塊在旋轉時各個瞬間位置所產生的離心力之分力沿拋擲方向作往復運動
立即了解?DZSF直線振動篩
-
CZ系列倉壁振動器
-
ZG系列慣性振動器
-
GZ系列電磁振動給料機
GZ系列電磁振動給料機在生產流程中,用于把塊狀、顆粒狀、粉狀物料從貯料倉或漏斗中定量、均勻、連續地給到受料裝置中去。
立即了解?GZ系列電磁振動給料機